SF6 مکمل طور پر گیس سے بھرے رنگ مین یونٹ کو جاننا بہتر ہے

1. SF6 گیس موصل سوئچ گیئر کی اہم خصوصیات:


گیس موصل سوئچ گیئر  10KV سے 35KV رنگ مین یونٹ پر اہم موصلیت میڈیم کے طور پر SF6 کو اپناتا ہے۔ شہری کاری کی تعمیر میں ، SF6 مکمل گیس سے بھرے رنگ کے مین یونٹ میں کمپیکٹ اور ماڈیولر ڈیزائن پر اشارے کے فوائد ہیں۔ یہ بڑے پیمانے پر شہری پاور گرڈ ، ریل ٹرانزٹ ، نئی توانائی کی صنعت ، اور صنعتی کاروباری اداروں کو اپناتا ہے۔


مواد کی جدول

1. ایس ایف 6 گیس موصلیت والے سوئچ گیئر کے مینفیچرز

1.1 SF6 گیس موصل سوئچ گیئر کا ماڈیولر ڈیزائن

1.2 SF6 گیس موصل سوئچ گیئر کا کمپیکٹ ڈیزائن

2. SF6 گیس موصل سوئچ گیئر کا ساختی سلیمی

2.1 SF6 گیس موصل سوئچ گیئر ڈھانچہ آریھ

2.2 SF6 رنگ مین یونٹ کے باہر جہت

2.3 معیاری حل اور توسیع کے ماڈیولز

3 SF6 گیس موصل سوئچ گیئر کا پیرامیٹر

 

1.1 SF6 گیس موصل سوئچ گیئر کا ماڈیولر ڈیزائن


The SF6 رنگ مین یونٹ  بنیادی طور پر سی (کیبل سوئچ پینل) ، وی (ویکیوم سرکٹ بریکر پینل) ، ڈی (براہ راست کیبل کنکشن پینل) ، ڈی ای (ارٹنگ پینل کے ساتھ براہ راست کیبل کنکشن) ، ایف (سوئچ فیوز منقطع پینل) ، اور ایم (میٹرنگ پینل) ہے۔

اصل معاملات میں ، سی اور وی یونٹ کیبل پاور لائن کو ان پٹ اور آؤٹ پٹ کرنے کے کنٹرول اور تحفظ کی پیش کش کرتا ہے۔ لوڈ آپریشن کے کام کے علاوہ ، V یونٹ میں شارٹ سرکٹ کرنٹ اور لوڈ کرنٹ کو کاٹنے پر زیادہ کام ہوتا ہے۔ ایم یونٹ میٹرنگ سی ٹی ، اور پی ٹی ، اور انرجی میٹر کو لیس کرتا ہے۔ عام طور پر ، اس کی 800 ملی میٹر چوڑائی ہوتی ہے جو ایک جیسی ہےKYN28-12. ڈی اور ڈی یونٹ کا استعمال کیبل کی اونچائی کو زمین سے ایس ایف 6 رنگ مین یونٹ کے اوپری حصے تک بڑھانے کے لئے کیا جاتا ہے۔ اس کے علاوہ ، ایف یونٹ ان پٹ اور آؤٹ پٹ پروٹیکشن میں بھی استعمال ہوتا ہے ، لیکن ٹرمینل صارفین ایف یونٹ کے بجائے وی یونٹ کو اپنانے کو ترجیح دیتے ہیں ، کیونکہ کنٹرولنگ گیئر زیادہ پیچیدہ ہے۔


1.2 SF6 گیس موصل سوئچ گیئر کا کمپیکٹ ڈیزائن


عام طور پر ، C یا V یونٹ کی جہت W*H*D = 371*1800*750 (ملی میٹر) ہے ، تاہم ، KYN28-12 کا ان پٹ یا آؤٹ پٹ پینل W*H*D = 800*2300*1500 (ملی میٹر) ہے۔ اس میں کوئی شک نہیں ہے کہ SF6 رنگ مین یونٹ لاجسٹکس اور زمین کے اخراجات پر زیادہ مسابقتی ہے۔ مزید یہ کہ ، ایک SF6 گیس موصل سوئچ گیئر میں کونٹ 28-12 سے کم مادی لاگت ہوتی ہے جیسا کہ کمپیکٹ ڈیزائننگ کے طور پر۔



2. SF6 گیس موصل سوئچ گیئر کا ساختی ایس کیم


   گیس موصل سوئچ گیئر میں ، اس میں بنیادی طور پر SF6 گیس ٹینک ، مین سوئچ اور بریکر ، بس بار سسٹم ، گیئر اور سیکنڈری کنٹرول اور تحفظ کے نظام کو کنٹرول کرنا ہے۔

   SF6 گیس ٹینک 201 یا 304 سٹینلیس سٹیل کو اپناتا ہے ، جس میں سے سالانہ رساو کی شرح 0.1 فیصد سے کم ہے ، جو مکمل طور پر مہر اور موصلیت کے طور پر ڈیزائن کی گئی ہے۔ یہ 30 سال سے زیادہ کی بحالی سے پاک خدمت کو یقینی بناتا ہے۔

   یہ ایک جیسا ہی ہےایئر موصل سوئچ گیئر  کہ ان پٹ اور آؤٹ پٹ پینل میں مین سوئچ اور بریکر پاور سسٹم کے کنٹرول اور تحفظ کے ل ear ایتھنگ سوئچ ، منقطع سوئچ ، لوڈ سوئچ بریکر اور ویکیوم سرکٹ بریکر ہے۔

   ایک عام SF6 ٹینک میں ، یہ زیادہ تر 10 KV پاور گرڈ سسٹم میں 7 ماڈیولر یونٹوں کو مربوط کرسکتا ہے۔ بصورت دیگر ، توسیع کے ل a ایک کنکشن کیبل اور کیبل پلگ ضروری ہے۔ تاہم ، ایک عام ٹینک میں ، ماڈیولر یونٹ تانبے کے بسبار کے ذریعہ جڑے ہوئے ہیں۔

   ثانوی کنٹرول اور تحفظ کے نظام میں SF6 رنگ مین یونٹ کو سسٹم کی ناکامی سے بچانے کے لئے ویلیو وولٹیج اور کرنٹ کی نگرانی کا کام ہے۔ دریں اثنا ، یہ آٹومیشن ، ریموٹ کنٹرول ، ڈیٹا کے حصول ، اور ایس سی اے ڈی اے سسٹم تک رسائی کی بھی حمایت کرتا ہے۔ اس کے علاوہ ، SF6 رنگ مین یونٹ بھی کنٹرول اور سگنل ٹرانسمیشن کے عام آپریشن کو یقینی بنانے کے لئے معاون بجلی کی فراہمی بھی فراہم کرتا ہے۔


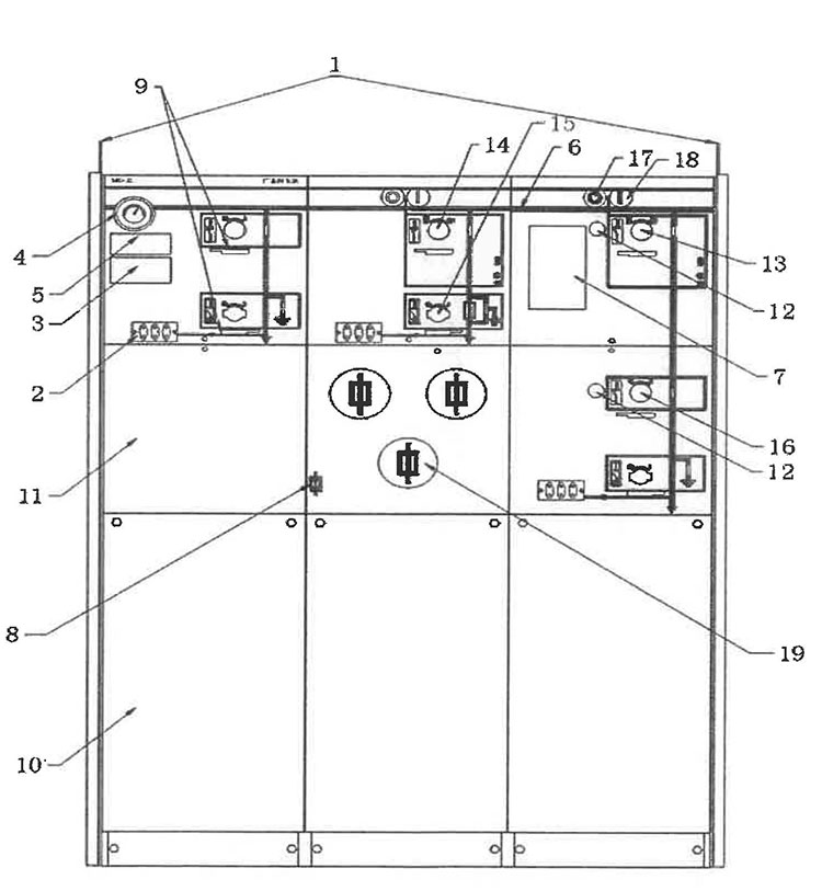
2.1 SF6 گیس موصل ایس ڈائنجیئر ایس ٹریکلچر ڈی آئیگرام:


 

 


1. لفٹنگ رنگ

2. براہ راست اشارے

3. قابل فالٹ اشارے

4. گیس پریشر میٹر

5. سیریل نمبر کے ساتھ پلیٹ

6. سنگل لائن ڈرائنگ

7. خود سے چلنے والا ریلے

8. اڑا ہوا فیوز اشارے

9. پیڈلاک

10. کیبل روم

11. RTU211 انسٹالیشن روم

12. لاکر

13. سرکٹ بریکر آپریشن ہول

14. لوڈ سوئچ آپریشن ہول

15. ایرنگ سوئچ آپریشن ہول

16. الگ تھلگ سوئچ آپریشن ہول

17. ٹرپ بٹن

18. بند بٹن

19. فیوز ٹوکری

 

 


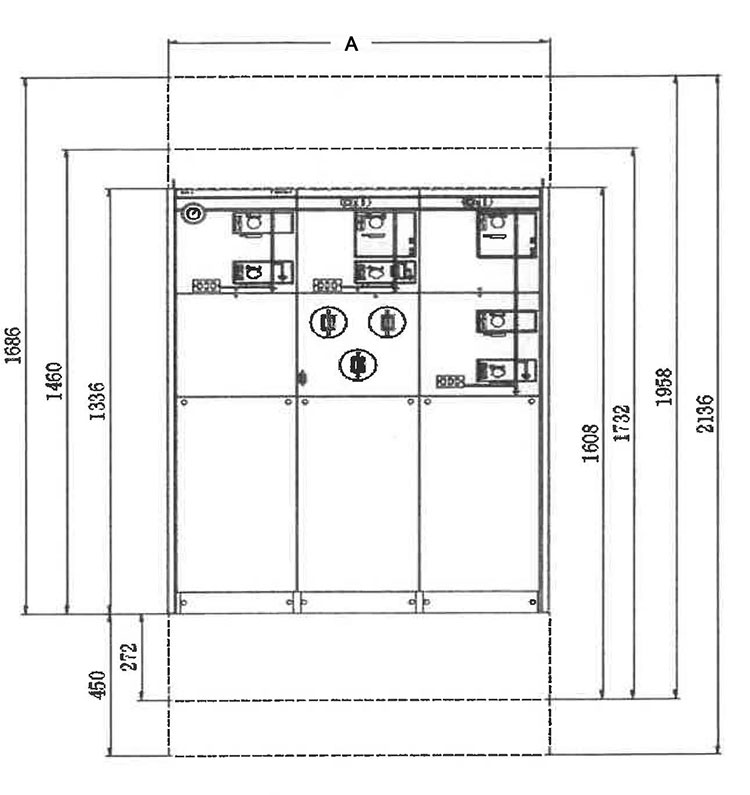
2.2 SF6 رنگ مین یونٹ کے باہر طول و عرض :


 

یونٹ

A

1 سیل

371

2 سیل

696

3 سیل

1021

4 سیل

1346

5 سیل

1671

6 سیل

1996

 

2.3 معیاری ایس اولیوشن اور ای ایکسٹینشن ایم اوڈولس :


 


سی: کیبل سوئچ  

F: فیوز کے ساتھ کیبل سوئچ

ڈی ای: ڈائریکٹر کیبل کنکشن کے ساتھ    

v: ویکیوم سرکٹ بریکر

ڈی: ڈائریکٹر کیبل کنکشن  

ایم: پیمائش ماڈیول (ہوا کی موصلیت)

 

3. SF6 گیس موصل سوئچ گیئر کا پیرا میٹر


1. SF6 گیس پریشر:

20 ° C پر نسبتا دباؤ 0.03MPA ہے

2. سالانہ گیس رساو کی شرح:

.0.01 ٪

3. تحفظ کی سطح:

IP67

4. عام آپریٹنگ ماحول کے حالات:

-35 ℃ سے+40 ℃

5. زیادہ سے زیادہ اوسط رشتہ دار نمی (25 ° C پر):

روزانہ اوسط قیمت ≤ 95 ٪ ؛

ماہانہ اوسط قیمت ≤ 90 ٪

6. اونچائی:

m 1000m

7. زلزلے کی شدت:

سطح

 

 

انکوائری بھیجیں۔

X
ہم آپ کو براؤزنگ کا بہتر تجربہ پیش کرنے ، سائٹ ٹریفک کا تجزیہ کرنے اور مواد کو ذاتی نوعیت دینے کے لئے کوکیز کا استعمال کرتے ہیں۔ اس سائٹ کا استعمال کرکے ، آپ کوکیز کے ہمارے استعمال سے اتفاق کرتے ہیں۔ رازداری کی پالیسی
مسترد قبول کریں